Пеллетный котел 0.6 МВт в Перми

Цена с НДС:
1 358 000 рублей
Цена с НДС на пеллетный котел 0.6 МВт с доставкой в
от 1 358 000 рублей
Условия в
В наличии на складе
Доставка ТК по России и Казахстану
Безналичный расчет
Есть в наличии
Можно купить в лизинг
Котел пеллетный 0.6 МВт
Пеллетный котел 0.6 МВт
Котел 0.6 МВт на пеллетах
Котел на пеллетах 0.6 МВт
Котел 0.6 МВт на пеллетах автоматический
Автоматический котел 0.6 МВт на пеллетах
Котел 0.6 МВт на пеллетах твердотопливный
Твердотопливный котел 0.6 МВт на пеллетах
Котел пеллетный 0.6 МВт
Котел 0.6 МВт на пеллетах
Котел 0.6 МВт на пеллетах автоматический
Котел 0.6 МВт на пеллетах твердотопливный
Видеообзор
Вид топки Ретортная, Автоматическая
Максимальная тепловая мощность 0.6 МВт
Отапливаемая площадь от 4700 до 6700 м²
Технические
характеристики
Описание
товара
Комплект
поставки
Дополнительное
оборудование
Монтаж и схемы
подключения
Сертификаты
и гарантии
Подбор
котла

Технические характеристики котла на пеллетах 0.6 МВт

Тип Котел КВм ДО
Тип отопительного котла Твердотопливный
Вид Водогрейный
Бренд HEATEXPERT
Вид топки Ретортная, Автоматическая
Максимальная тепловая мощность 0.6 МВт
Максимальная тепловая мощность 600 кВт
Максимальная тепловая мощность 0.52 Гкал
Диапазон регулирования мощности 30-100 %
Диапазон регулирования мощности 180-600 кВт
Топливо Твердое, Пеллеты
Низшая теплота сгорания проектного топлива 4900 кКал/кг
Влажность топлива 20 %
Фракционный состав топлива 6-10 мм
КПД котла на ПЕЛЛЕТАХ, не менее 80 %
Расход ПЕЛЛЕТ среднечасовой за отопительный сезон 77 кг/ч
Расход ПЕЛЛЕТ при максимальной нагрузке котла 136 кг/ч
Расход условного топлива 95 кг/ч
Максимальная температура воды на выходе из котла 115 °C
Минимальная температура воды на входе в котел 55 °C
Срок автономной работы при минимальной нагрузке до 1 суток
Срок автономной работы в среднем за отопительный сезон 7 часов
Срок автономной работы при максимальной нагрузке котла 4 часа
Давление воды, не более 0.15-0.3 (1.5-3) МПа (кгс/см²)
Номинальный расход теплоносителя 21 м³/ч
Расход теплоносителя через котел min-max 17-27 м³/ч
Гидравлическое сопротивление при номинальном расходе не более 0.07 (0.7) МПа (кгс/cм²)
Аэродинамическое сопротивление 100 (10) Па (мм. вод. ст.)
Разряжение в топочной камере 20-40 (2-4) Па (мм. вод. ст.)
Объем уходящих газов 3300 м³/ч
Температура уходящих газов, не более 220 °C
Тяга Уравновешенная
Водяной объем котла 640 л
Объем топочной камеры 0.58 м³
Объем бункера 0.8 м³
Объем штатного бункера (насыпная плотность 650 кг/м³) 520 кг
Размер топочной камеры, диаметр*высота 900х1410 мм
Присоединительные размеры по водяному тракту 80 Ду
Присоединительные размеры газохода уходящих газов, ширина*высота / сечение 600х200 / 0.12 мм/м²
Габаритные размеры блока, длина*ширина*высота 1950х1600х2500 мм
Габаритные размеры установки, длина*ширина*высота 3050х1600х2500 мм
Масса 2800 кг
Конструкция котла водотрубная, вертикальная
Количество контуров Одноконтурный
Размещение Напольный
Тип камеры сгорания Закрытый
Управление Электронное
Принцип работы твердотопливного котла Классический
Энергонезависимый Нет
Тип питания Трехфазное
Встроенный циркуляционный насос Нет
Встроенный расширительный бак Нет
Марка HeatExpert
Отапливаемая площадь от 4700 до 6700 м²
Отапливаемый объем от 13900 до 19900 м³
Энергоэффективность Высокая
Котел на пеллетах 0.6 МВт чертеж
Чертеж котла на пеллетах 0.6 МВт
Чертеж автоматического котла на пеллетах 0.6 МВт с бункером 2 м3
Чертеж автоматического котла на пеллетах 0.6 МВт с бункером 2 м³
Чертеж автоматического котла на пеллетах 0.6 МВт с бункером 3 м3
Чертеж автоматического котла на пеллетах 0.6 МВт с бункером 3 м³

Промышленные пеллетные котлы 0.6 МВт в Перми

Промышленный автоматический водогрейный пеллетный котел 0.6 МВт Пермь выполняется напольной горизонтальной водотрубной конструкцией. Сам котельный блок состоит из топки с ретортной горелкой, конвективного блока и зольника. К теплогенератору крепится бункер.

Шахматное расположение труб конвективной части обеспечивает высокий коэффициент теплоотдачи. Гидравлическая схема исключает образование застойных зон и перегрев трубной системы.

В конструкцию топки входит ретортная горелка с вращающимся колосником. Благодаря поворотному колоснику ретортная горелка обеспечивает равномерное распределение топлива по плите, осуществляет сброс сплавляющихся остатков, не допуская спекания и залипания на плите.

Промышленный отопительный пеллетный котел 0.6 МВт российского производства работает на всех видах пеллет, включая низкокачественные и агропеллеты. Под ретортой располагается зольный короб. Чистка котла производится редко в связи с низкой зольностью топлива. Герметичный бункер для пеллетного котла 0.6 МВт исключает обратную тягу и защищает топливо от возгорания.

Котел на гранулах 0,6 МВт имеет двойную подачу воздуха. Воздух на горение подается в топку через колосниковую решетку ретортной горелки. Чтобы избежать температурных колебаний, в центр чаши подается воздух для предварительной подсушки. Наш теплогенератор на пеллетах обеспечивает стабильную работу даже при загрузке влажного топлива.

Автоматика полностью контролирует работу котла на пилетах, позволяет производить дозированную подачу топлива для поддержания необходимых температурных режимов, контролирует горение, обеспечивает безопасность.

Как обеспечивается безопасность работы пеллетного котла 0.6 МВт

Водогрейный пеллетный котел 0.6 МВт производство Россия выполнен с высокой степенью пожаробезопасности. Безопасную работу котла обеспечивает автоматика, предупреждая о перегреве светозвуковой сигнализацией. Герметичный бункер исключает обратную тягу, тем самым защищает от обратного хода пламени в бункер. Термодатчик на корпусе шнека фиксирует повышение температуры и полностью сбрасывает топливо внутрь котла, предотвращая возгорание.

Российский пеллетный теплогенератор 0,6 МВт оснащен автономной системой пожаротушения прямого действия. Термочувствительный датчик производит открытие водяного клапана и подачу воды из резервуара в топку.

Купить пеллетный котел 0.6 МВт

Для того чтобы купить водогрейный котел на пеллетах 0.6 МВт в Перми , вы можете сделать заявку в отдел сбыта по телефону 8-800-700-06-43, либо оформить заявку он-лайн. Менеджеры дадут консультацию по подбору вспомогательного оборудования для выбранных вами моделей и рассчитают стоимость доставки. Транспортирование котлоагрегата и вспомогательного оборудования может осуществляться автотранспортом, ж/д полувагонами и речным транспортом.

Комплект поставки котла на пеллетах 0.6 МВт

Цена водогрейного котла на пеллетах 0.6 МВт включает в себя запорную арматуру и КИП в пределах котла, вентилятор поддува и предохранительные клапаны. Ниже приведена подробная информация.

Дополнительное оборудование котла на пеллетах 0.6 МВт

Для эффективной и надежной работы котла на пеллетах 0.6 МВт вам потребуется дополнительное оборудование - автоматика, дымосос, золоуловитель, насос сетевой и подпиточный, газоходы и переходники для газового тракта, дымовая труба. Мы предлагаем рассмотреть типовые варианты комплектации. В случае если у вас на объекте имеется насосное и тягодутьевое оборудование, мы можем проверить совместимость котла на пеллетах 0.6 МВт нашего производства и вашего оборудования. Можем изготовить нестандартные узлы для выполнения быстрого монтажа котла - газоходы и узлы обвязки. Типовую схему монтажа котла вы можете посмотреть во вкладке схемы подключения.

Автоматика котла пеллетного с ретортной горелкой
Автоматика пеллетного котла с ретортной горелкой
340000 руб. с НДС

Полностью автоматическое регулирование работы котла:

  • ручной розжиг котла;
  • автоматическое поддержание заданной температуры;
  • погодозависимое регулирование;
  • контроль уровня топлива в топливном бункере (при использовании пеллет);
  • автоматическое пожаротушение, в случае возгорания в шнеке;
  • возможно подключение удаленного контроля параметров работы котла посредством GSM, Ethernet, WiFi модуля (доп опция)
TD насос
Насос TD40-36G2 (5.5 кВт)
192700 руб. с НДС
ДН 3.5 дымосос
Дымосос ДН 3,5/1500
55900 руб. с НДС
ЗУ 0.6 золоуловитель
Золоуловитель 0,6
45000 руб. с НДС
  • Компактный золоуловитель для твердотопливных котлов
  • Может устанавливаться как сразу за котлом, так и на улице
  • Универсальная конструкция позволяет организовать выход справа или слева, в зависимости от компоновки газоходов
ДН 6.3 дымосос
Дымосос ДН 6,3/1500
101400 руб. с НДС

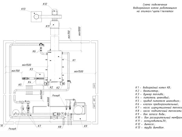
Монтаж и схемы подключения котла на пеллетах 0.6 МВт

Водогрейный стальной отопительный пеллетный котел 0.6 МВт, предназначен для получения горячей воды номинальной температурой на выходе из котла от 95 до 115 °С рабочим давлением до 0,3 (3,0) МПа (кгс/см), используемой в системах централизованного теплоснабжения на нужды отопления, горячего водоснабжения. Устанавливается в производственных, промышленных и отопительных котельных.

Монтаж и подключение котла на пеллетах 0.6 МВт

Водогрейный котел на пеллетах схема подключения

Схема подключения водогрейного котла работающего на пеллетах

Схема подключения пеллетного котла

Схема подключения пеллетного котла

Водогрейный пеллетный котел схема подключения

Сертификаты и гарантии котла на пеллетах 0.6 МВт

Водогрейный пеллетный котел 0.6 МВт имеет гарантийный срок 24 месяца. Срок работы при соблюдении правил монтажа и эксплуатации оборудования 10 лет.

Водогрейные котлы сертификат
Сертификат на водогрейные котлы
Сертификат на водогрейные котлы на газе и жидком топливе
Сертификат на водогрейные котлы на газе и жидком топливе

Подберите мощность котла для вашего объекта

Тип здания
Регион
Населенный пункт
Наружный объем здания
3)
Отапливаемый подвал
Объем подвала
3)

Отзывы о продукции

Другая похожая продукция

КВр котел 0.6 МВт
Котел КВр 0.6
Максимальная тепловая мощность, МВт 0.6
Топливо Твердое, Уголь
Вид топки Ручная, Колосники
Отапливаемая площадь, м² от 4700 до 6700
618 000 ₽
Котел на опилках 0.6 МВт автоматический
Котел 0.6 МВт на опилках
Максимальная тепловая мощность, МВт 0.6
Топливо Опилки, Твердое
Вид топки Вихревая, Автоматическая
Отапливаемая площадь, м² от 4700 до 6700
1 793 000 ₽
Котел 0.6 МВт дрова уголь
Котел 0.6 МВт уголь дрова
Максимальная тепловая мощность, МВт 0.6
Топливо Твердое, Уголь, Дрова
Вид топки Колосники, ОУР, Ручная
Отапливаемая площадь, м² от 4700 до 6700
649 000 ₽
Котел 0.6 МВт на дровах
Котел на дровах 0.6
Максимальная тепловая мощность, МВт 0.6
Топливо Твердое, Дрова
Вид топки Колосники, ОУР, Ручная
Отапливаемая площадь, м² от 4700 до 6700
663 000 ₽
Котел пеллетный 0.5 МВт
Пеллетный котел 0.5 МВт
Максимальная тепловая мощность, МВт 0.5
Топливо Пеллеты, Твердое
Вид топки Ретортная, Автоматическая
Отапливаемая площадь, м² от 3900 до 5500
1 230 000 ₽